splendido 2 locali cantina e box

Gorgonzola (Milano)

Rif: 1260 (2496605)
Condividi Linkedin Whatsapp Stampa
€ 220.000
Appartamento
65 Mq
2 Vani
Classe energetica B
1 camera
1 bagno
Garage
Ascensore
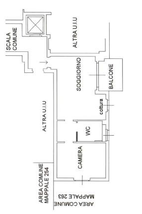
in nuova zona residenziale comoda per raggiungere la fermata metropolitana, recente e signorile costruzione in classe energetica B, splendido appartamento di 2 locali e servizi posto al piano secondo con ascensore, composto da soggiorno con angolo cottura da cui si accede al terrazzo coperto (arredo cucina di marca compreso nel prezzo), disimpegno notte con armadiatura ad uso ripostiglio e bagno rifatto a nuovo con doccia ampia ed arredobagno compreso. completano la proprietà un vano cantina ed il box singolo compresi nel prezzo. rifinito tutto in extra capitolato, centrale termica a condensazione con gestione autonoma, cappotto esterno e pannelli solari per acqua calda sanitaria. le spese condominiali comprendono anche riscaldamento e acqua calda/fredda.
POSSIBILITA' DI ACCEDERE AL MUTUO GREEN VISTA LA CLASSE ENERGETICA!!!

Dettaglio immobile

Contratto Vendita
Rif 1260 (2496605)
Prezzo € 220.000
Provincia Milano
Comune Gorgonzola
Indirizzo Via Don Luigi Sturzo 15
Superficie 65 mq
Vani 2
Camere 1
Bagni 1
Classe energetica B (DL 192/2005)
EPI 45.00 kwh/m2 anno
Piano 2 / 4
Riscaldamento centralizzato
Condizioni nuova costruzione
Spese condominiali € 208
Anno di costruzione 2011
Arredato si
Ascensore si
Garage singolo si
Cantina si
Cucina angolo cottura
Terrazza si

Consistenze

Descrizione Superficie Sup. comm.
Principali
Immobile - 2° piano 65 Mq 65 Mqc
Totale 65 Mqc

Planimetrie

Richiedi maggiori informazioni

Autorizzazione al trattamento dei dati personali+
Dichiaro di aver letto l'informativa sulla privacy ed accetto le condizioni d'utilizzo del servizio.
Riempi il campo con il codice riportato nell'immagine*
Codice Captcha
Chiamaci Contattaci